| 価格 | 2,480万円 |
|---|---|
| 種目 | 新築一戸建住宅 |
| 所在地 | 十和田市東十五番町130-5・130-12・130-13(地番) \東十五番町/ 三本木小学校・十和田中学校 |
| 建物面積 | 105.06㎡ |
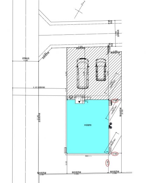
| 土地面積 | 242.86㎡ |
◆十和田中学校まで徒歩約10分
◆生活利便性の良い立地
◆ZEH基準省エネ住宅
◆駐車3台以上可
◆2階にもトイレがあるので夜間も安心
◆ガス衣類乾燥機「乾太くん」標準設置
◆ゆったり入れる一坪タイプの浴室
この物件の詳細について、お気軽にお問い合わせください
この物件の詳細について、お気軽にお問い合わせください
物件価格2,480万円
月々の支払い60,958円
※上記支払例の借入条件:金利0.85%、借入総額2,480万円、借入期間40年
| 種目 | 新築一戸建住宅 | ||
|---|---|---|---|
| 間取り | 4LDK | 間取り内訳 | 1階(LDK13.9帖、和室6帖、洗面脱衣室、浴室、トイレ)2階(サンルーム付き寝室8帖、洋室6.3帖、洋室5.3帖、トイレ) |
| 土地面積 | 242.86㎡ | 私道面積 | |
| 建物面積 | 105.06㎡ | 建物構造規模 | 木造 2階建 |
| 築年月(竣工月) | 2026年07月 | 駐車場 | |
| 建ぺい率/容積率 | 50%/80% | 都市計画 | 市街化区域 |
| 接道状況 | 北西4m 公道 接面8.8m 南西4m 公道 接面19.4m | ||
| 地目 | 宅地 | ||
| 土地権利 | 所有権 | 地勢 | |
| 用途地域 | 第一種低層住居専用地域 | ||
| 現況 | 未完成 | 取引態様 | 売主 |
| 建築確認番号 | R07確認建セ青上北第0169号 | ||
| 引渡し | 相談 |
|---|
| 設備 | 温水洗浄便座、トイレ2ヶ所、追焚機能、システムキッチン、IHクッキングヒーター、浄水器、食器洗浄乾燥機、ウォークインクローゼット、洗髪洗面化粧台、照明器具、電気、プロパンガス、上水道、下水道、複層ガラス、エアコン、モニタ付インターホン、ディンプルキー、庭、駐車場3台分 | ||
|---|---|---|---|
| 特徴 | 日当り良好、24時間換気システム、外断熱、制震構造、ハイブリッド電化 | ||
| 諸条件・相談 | |||
| 情報登録日 | 2026年2月20日 | 情報更新予定日 | 2026年4月17日 |
| 物件番号 | 509 | ||
| 所在地 | 十和田市東十五番町130-5・130-12・130-13(地番) \東十五番町/ 三本木小学校・十和田中学校 | ||
|---|---|---|---|
| 最寄駅 | 青い森鉄道 向山駅 | 徒歩分数 | 184分 |
| 最寄バス停 | 東十五番町 | 徒歩分数 | 2分 |
| 小学校校区 | 三本木小学校 | 中学校校区 |
十和田中学校
|
※学校区は住所から自動判定したものであり、保証できる情報ではございません。正確な学校区はお問い合わせ下さい。
※地図上の「対象地」は実際の場所ではない場合がございます。詳しくはお問い合わせください。
