| 価格 | 595万円 |
|---|---|
| 種目 | 売地 |
| 所在地 | 上北郡おいらせ町苗振谷地33-7(仲介土地) |
| 土地面積 | 249.16㎡ |
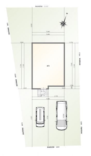
プラン例公開中!
【仲介物件】
◆百石小学校まで徒歩約12分
◆百石中学校まで徒歩約28分
◆生活利便性の良い立地です
◆新商品「ココリブ」
プラン集の中から、お客様のお好みの外観・内観のテイストやカラーが選べる「ココリブ」
「ココに暮らしたい」と思えるお家づくりをサポートします!
お気軽にお問い合わせください。
この物件の詳細について、お気軽にお問い合わせください
物件価格595万円
月々の支払い14,625円
※上記支払例の借入条件:金利0.85%、借入総額595万円、借入期間40年
| 種目 | 売地 | ||
|---|---|---|---|
| 土地面積 | 249.16㎡ | 私道面積 | |
| 建ぺい率/容積率 | 60%/200%、60%/200% | 都市計画 | 未線引区域 |
| 接道状況 | |||
| 地目 | 宅地 | ||
| 土地権利 | 所有権 | 地勢 | |
| 用途地域 | 第一種住居地域、第二種住居地域 | ||
| 現況 | 更地 | 取引態様 | 媒介 |
| 引渡し | 相談 |
|---|
| 条件等 | |||
|---|---|---|---|
| 設備 | 上水道、下水道 | ||
| 諸条件・相談 | |||
| 情報登録日 | 2025年12月2日 | 情報更新予定日 | 2026年3月29日 |
| 物件番号 | 484 | ||
| 所在地 | 上北郡おいらせ町苗振谷地33-7(仲介土地) | ||
|---|---|---|---|
| 最寄駅 | 青い森鉄道 下田駅 | 徒歩分数 | 33分 |
| 最寄バス停 | 百石高校前 | 徒歩分数 | 2分 |
| 小学校校区 | 百石小学校 | 中学校校区 |
百石中学校
|
※学校区は住所から自動判定したものであり、保証できる情報ではございません。正確な学校区はお問い合わせ下さい。
※地図上の「対象地」は実際の場所ではない場合がございます。詳しくはお問い合わせください。
