| 価格 | 500万円 |
|---|---|
| 種目 | 売地 |
| 所在地 | 青森市大字駒込字桐ノ沢3-117(仲介土地) |
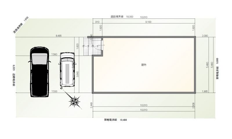
| 土地面積 | 199.51㎡ |
【仲介物件】
◆現況渡しです
◆浜館小学校まで徒歩約18分
◆戸山中学校まで徒歩約34分
◆新商品「ココリブ」
プラン集の中から、お客様のお好みの外観・内観のテイストやカラーが選べる「ココリブ」
「ココに暮らしたい」と思えるお家づくりをサポートします!
お気軽にお問い合わせください。
この物件の詳細について、お気軽にお問い合わせください
物件価格500万円
月々の支払い12,290円
※上記支払例の借入条件:金利0.85%、借入総額500万円、借入期間40年
| 種目 | 売地 | ||
|---|---|---|---|
| 土地面積 | 199.51㎡ | 私道面積 | |
| 建ぺい率/容積率 | 60%/200% | 都市計画 | 市街化区域 |
| 接道状況 | 北東5.1m 公道 接面18.4m 北西5m 公道 接面8m | ||
| 地目 | 宅地 | ||
| 土地権利 | 所有権 | 地勢 | |
| 用途地域 | 第二種住居地域 | ||
| 現況 | 更地 | 取引態様 | 媒介 |
| 引渡し | 相談 |
|---|
| 条件等 | |||
|---|---|---|---|
| 設備 | 上水道 | ||
| 諸条件・相談 | |||
| 情報登録日 | 2025年10月30日 | 情報更新予定日 | 2026年1月5日 |
| 物件番号 | 474 | ||
| 所在地 | 青森市大字駒込字桐ノ沢3-117(仲介土地) | ||
|---|---|---|---|
| 最寄駅 | 青い森鉄道 東青森駅 | 徒歩分数 | 21分 |
| 最寄バス停 | 古舘十文字 | 徒歩分数 | 8分 |
| 小学校校区 | 浜館小学校 | 中学校校区 |
戸山中学校
|
※学校区は住所から自動判定したものであり、保証できる情報ではございません。正確な学校区はお問い合わせ下さい。
※地図上の「対象地」は実際の場所ではない場合がございます。詳しくはお問い合わせください。
