| 価格 | 3,125万円 |
|---|---|
| 種目 | 新築一戸建住宅 |
| 所在地 | 八戸市売市4丁目13-3(地番) 【商談中・スーパーまで徒歩4分】売市4丁目分譲住宅 |
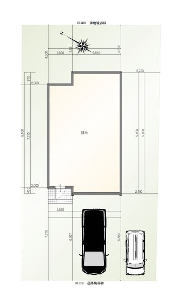
| 建物面積 | 91.08㎡ |
| 土地面積 | 198.4㎡ |
※商談中
◆まほろば幼稚園まで徒歩約8分
◆スーパー、ドラッグストアが徒歩10分以内
◆家族と家にいたくなる省エネルギー住宅
◆非認知能力の向上にいい18.2帖LDK
◆子供とも入れる一坪タイプの浴室
◆安心安全な地盤保証と定期点検
※契約後約6カ月で引渡予定

この物件の詳細について、お気軽にお問い合わせください
この物件の詳細について、お気軽にお問い合わせください
物件価格3,125万円
月々の支払い76,812円
※上記支払例の借入条件:金利0.85%、借入総額3,125万円、借入期間40年
| 種目 | 新築一戸建住宅 | ||
|---|---|---|---|
| 間取り | 3LDK | 間取り内訳 | 1階(LDK18.2帖、洗面脱衣室、浴室、トイレ)2階(寝室7帖、洋室4.5帖、洋室5.5帖、トイレ) |
| 土地面積 | 198.4㎡ | 私道面積 | |
| 建物面積 | 91.08㎡ | 建物構造規模 | 木造 2階建 |
| 築年月(竣工月) | 2026年03月 | 駐車場 | |
| 建ぺい率/容積率 | 60%/200% | 都市計画 | 市街化区域 |
| 接道状況 | 南西6m 公道 接面10.1m | ||
| 地目 | 宅地 | ||
| 土地権利 | 所有権 | 地勢 | |
| 用途地域 | 第二種中高層住居専用地域 | ||
| 現況 | 未完成 | 取引態様 | 売主 |
| 建築確認番号 | R07確認建セ青八戸第0146号 | ||
| 引渡し | 相談 |
|---|
| 設備 | 温水洗浄便座、トイレ2ヶ所、追焚機能、システムキッチン、IHクッキングヒーター、浄水器、食器洗浄乾燥機、ウォークインクローゼット、洗髪洗面化粧台、照明器具、電気、上水道、下水道、複層ガラス、エアコン、モニタ付インターホン、ディンプルキー、庭、駐車場2台分 | ||
|---|---|---|---|
| 特徴 | 日当り良好、24時間換気システム、制震構造、ハイブリッド電化 | ||
| 諸条件・相談 | |||
| 情報登録日 | 2025年9月10日 | 情報更新予定日 | 2025年11月20日 |
| 物件番号 | 459 | ||
| 所在地 | 八戸市売市4丁目13-3(地番) 【商談中・スーパーまで徒歩4分】売市4丁目分譲住宅 | ||
|---|---|---|---|
| 最寄駅 | JR八戸線 本八戸駅 | 徒歩分数 | 16分 |
| 最寄バス停 | 緑ケ丘 | 徒歩分数 | 3分 |
| 小学校校区 | 江南小学校 | 中学校校区 |
根城中学校
|
※学校区は住所から自動判定したものであり、保証できる情報ではございません。正確な学校区はお問い合わせ下さい。
※地図上の「対象地」は実際の場所ではない場合がございます。詳しくはお問い合わせください。
