| 価格 | 742万円 | 
|---|---|
| 種目 | 売地 | 
| 所在地 | 八戸市南白山台2丁目8(NO.3) | 
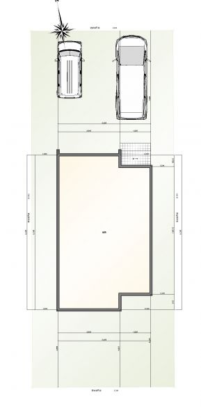
| 土地面積 | 175.18㎡ | 
【建築条件付き土地】
◆子育て環境にいい立地です
◆白山台小学校まで徒歩約16分
◆白山台中学校まで徒歩約13分
◆新商品「ココリブ」
プラン集の中から、お客様のお好みの外観・内観のテイストやカラーが選べる「ココリブ」
「ココに暮らしたい」と思えるお家づくりをサポートします!
お気軽にお問い合わせください。
この物件の詳細について、お気軽にお問い合わせください
物件価格742万円
月々の支払い18,238円
※上記支払例の借入条件:金利0.85%、借入総額742万円、借入期間40年
| 種目 | 売地 | ||
|---|---|---|---|
| 土地面積 | 175.18㎡ | 私道面積 | |
| 建ぺい率/容積率 | 50%/80% | 都市計画 | 市街化区域 | 
| 接道状況 | 北6m 公道 接面8.3m | ||
| 地目 | 宅地 | ||
| 土地権利 | 所有権 | 地勢 | |
| 用途地域 | 第一種低層住居専用地域 | ||
| 現況 | 更地 | 取引態様 | 売主 | 
| 引渡し | 相談 | 
|---|
| 条件等 | 建築条件付 | ||
|---|---|---|---|
| 設備 | 上水道、下水道 | ||
| 諸条件・相談 | |||
| 情報登録日 | 2025年9月2日 | 情報更新予定日 | 2025年11月3日 | 
| 物件番号 | 449 | ||
| 所在地 | 八戸市南白山台2丁目8(NO.3) | ||
|---|---|---|---|
| 最寄駅 | JR八戸線 八戸駅 | 徒歩分数 | 58分 | 
| 最寄バス停 | ニュータウン中央 | 徒歩分数 | 4分 | 
| 小学校校区 | 白山台小学校 | 中学校校区 | 白山台中学校 | 
※学校区は住所から自動判定したものであり、保証できる情報ではございません。正確な学校区はお問い合わせ下さい。
※地図上の「対象地」は実際の場所ではない場合がございます。詳しくはお問い合わせください。
