| 価格 | 2,890万円 |
|---|---|
| 種目 | 新築一戸建住宅 |
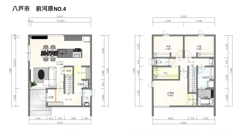
| 所在地 | 八戸市大字尻内町字前河原46-13(NO.4) 【西園小まで徒歩10分】前河原NO.4分譲住宅 |
| 建物面積 | 89.45㎡ |
| 土地面積 | 187.98㎡ |
※契約後約6カ月で引渡予定
◆住宅ローン月々返済59200円~
◆ZEH基準省エネ住宅
◆尻内保育園まで徒歩約9分
◆西園小学校まで徒歩約10分
◆子育て環境にいい立地
◆JR八戸駅へのアクセス良好
◆LDKは家族でくつろげる広々17.2帖
◆駐車2台以上可
◆一坪タイプの浴室
◆2階にもトイレがあるので夜間も安心
この物件の詳細について、お気軽にお問い合わせください
この物件の詳細について、お気軽にお問い合わせください
物件価格2,890万円
月々の支払い71,036円
※上記支払例の借入条件:金利0.85%、借入総額2,890万円、借入期間40年
| 種目 | 新築一戸建住宅 | ||
|---|---|---|---|
| 間取り | 3LDK | 間取り内訳 | 1階(LDK17.2帖、洗面所、トイレ)2階(寝室6.5帖、洋室4.4帖、洋室4.4帖、洗面脱衣室、浴室、トイレ) |
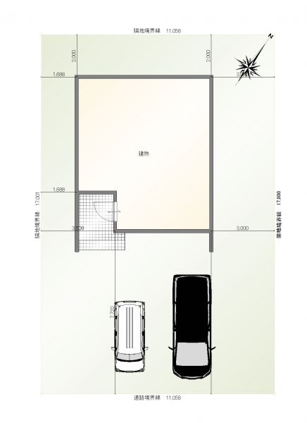
| 土地面積 | 187.98㎡ | 私道面積 | |
| 建物面積 | 89.45㎡ | 建物構造規模 | 木造 2階建 |
| 築年月(竣工月) | 2026年08月 | 駐車場 | |
| 建ぺい率/容積率 | 60%/200% | 都市計画 | 市街化区域 |
| 接道状況 | 南東6m 公道 接面11m | ||
| 地目 | 宅地 | ||
| 土地権利 | 所有権 | 地勢 | |
| 用途地域 | 第一種住居地域 | ||
| 現況 | 未完成 | 取引態様 | 売主 |
| 建築確認番号 | R07確認建セ青八戸第0042号 | ||
| 引渡し | 相談 |
|---|
| 設備 | 温水洗浄便座、トイレ2ヶ所、追焚機能、システムキッチン、IHクッキングヒーター、浄水器、食器洗浄乾燥機、ウォークインクローゼット、洗髪洗面化粧台、照明器具、電気、プロパンガス、上水道、下水道、複層ガラス、エアコン、モニタ付インターホン、ディンプルキー、庭、駐車場3台分 | ||
|---|---|---|---|
| 特徴 | 日当り良好、24時間換気システム、制震構造、ハイブリッド電化 | ||
| 諸条件・相談 | |||
| 情報登録日 | 2025年7月25日 | 情報更新予定日 | 2026年1月19日 |
| 物件番号 | 433 | ||
| 所在地 | 八戸市大字尻内町字前河原46-13(NO.4) 【西園小まで徒歩10分】前河原NO.4分譲住宅 | ||
|---|---|---|---|
| 最寄駅 | JR八戸線 八戸駅 | 徒歩分数 | 23分 |
| 最寄バス停 | 青龍寺 | 徒歩分数 | 11分 |
| 小学校校区 | 西園小学校 | 中学校校区 |
三条中学校
|
※学校区は住所から自動判定したものであり、保証できる情報ではございません。正確な学校区はお問い合わせ下さい。
※地図上の「対象地」は実際の場所ではない場合がございます。詳しくはお問い合わせください。
