| 価格 | 790万円 |
|---|---|
| 種目 | 売地 |
| 所在地 | 八戸市大字尻内町字前河原46-13(NO.4) |
| 土地面積 | 187.98㎡ |
プラン例公開中!
【建築条件なし】
◆八戸駅まで徒歩約23分
◆西園小学校まで徒歩約10分
◆周辺は戸建て住宅やアパートが立ち並ぶ住宅街
◆新商品「ココリブ」
プラン集の中から、お客様のお好みの外観・内観のテイストやカラーが選べる「ココリブ」
「ココに暮らしたい」と思えるお家づくりをサポートします!
お気軽にお問い合わせください。
この物件の詳細について、お気軽にお問い合わせください
物件価格790万円
月々の支払い19,418円
※上記支払例の借入条件:金利0.85%、借入総額790万円、借入期間40年
| 種目 | 売地 | ||
|---|---|---|---|
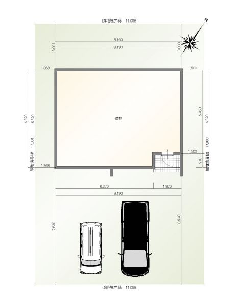
| 土地面積 | 187.98㎡ | 私道面積 | |
| 建ぺい率/容積率 | 60%/200% | 都市計画 | 市街化区域 |
| 接道状況 | 南東6m 公道 接面11m | ||
| 地目 | 宅地 | ||
| 土地権利 | 所有権 | 地勢 | 平坦 |
| 用途地域 | 第一種住居地域 | ||
| 現況 | 更地 | 取引態様 | 売主 |
| 引渡し | 相談 |
|---|
| 条件等 | |||
|---|---|---|---|
| 設備 | 電気、上水道、下水道 | ||
| 諸条件・相談 | |||
| 情報登録日 | 2025年6月17日 | 情報更新予定日 | 2025年11月26日 |
| 物件番号 | 419 | ||
| 所在地 | 八戸市大字尻内町字前河原46-13(NO.4) | ||
|---|---|---|---|
| 最寄駅 | JR八戸線 八戸駅 | 徒歩分数 | 23分 |
| 最寄バス停 | 青龍寺 | 徒歩分数 | 11分 |
| 小学校校区 | 西園小学校 | 中学校校区 |
三条中学校
|
※学校区は住所から自動判定したものであり、保証できる情報ではございません。正確な学校区はお問い合わせ下さい。
※地図上の「対象地」は実際の場所ではない場合がございます。詳しくはお問い合わせください。
