| 価格 | 3,500万円 |
|---|---|
| 種目 | 新築一戸建住宅 |
| 所在地 | 八戸市根城9丁目17-7 【家具付き・根城中まで徒歩5分】根城9丁目NO.1分譲住宅 |
| 建物面積 | 103.5㎡ |
| 土地面積 | 168.69㎡ |
家具付きで販売中!
◆八戸めぐみ幼稚園まで徒歩約6分
◆根城中学校まで徒歩約5分
◆食事の準備も片づけもコミュニケーションを取りながらできる対面キッチン
◆非認知能力の向上にいい15.8帖LDK
◆子供とも入れる一坪タイプの浴室
◆家族と家にいたくなる省エネルギー住宅
◆安心安全な地盤保証と定期点検
この物件の詳細について、お気軽にお問い合わせください
この物件の詳細について、お気軽にお問い合わせください
物件価格3,500万円
月々の支払い86,030円
※上記支払例の借入条件:金利0.85%、借入総額3,500万円、借入期間40年
| 種目 | 新築一戸建住宅 | ||
|---|---|---|---|
| 間取り | 3LDK | 間取り内訳 | 1階(LDK15.8帖、洗面室、脱衣室、浴室、トイレ)2階(寝室6帖、洋室5帖、洋室5帖、トイレ) |
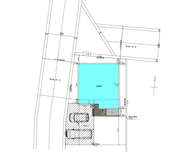
| 土地面積 | 168.69㎡ | 私道面積 | |
| 建物面積 | 103.5㎡ | 建物構造規模 | 木造 2階建 |
| 築年月(竣工月) | 2025年07月 | 駐車場 | |
| 建ぺい率/容積率 | 60%/200% | 都市計画 | 市街化区域 |
| 接道状況 | 北6m 公道 接面9.4m 西5.8m 公道 接面16.6m | ||
| 地目 | 宅地 | ||
| 土地権利 | 所有権 | 地勢 | 平坦 |
| 用途地域 | 第二種中高層住居専用地域 | ||
| 現況 | 空家 | 取引態様 | 売主 |
| 建築確認番号 | R06確認建セ八八戸第0166号 | ||
| 引渡し | 相談 |
|---|
| 設備 | トイレ2ヶ所、追焚機能、システムキッチン、IHクッキングヒーター、浄水器、食器洗浄乾燥機、ウォークインクローゼット、洗髪洗面化粧台、照明器具、電気、プロパンガス、上水道、下水道、複層ガラス、エアコン、モニタ付インターホン、ディンプルキー、庭、駐車場2台分 | ||
|---|---|---|---|
| 特徴 | 日当り良好、24時間換気システム、外断熱、制震構造、ハイブリッド電化 | ||
| 諸条件・相談 | |||
| 情報登録日 | 2025年1月28日 | 情報更新予定日 | 2025年12月11日 |
| 物件番号 | 379 | ||
| 所在地 | 八戸市根城9丁目17-7 【家具付き・根城中まで徒歩5分】根城9丁目NO.1分譲住宅 | ||
|---|---|---|---|
| 最寄駅 | JR八戸線 本八戸駅 | 徒歩分数 | 31分 |
| 最寄バス停 | 根城博物館前 | 徒歩分数 | 2分 |
| 小学校校区 | 江南小学校 | 中学校校区 |
根城中学校
|
※学校区は住所から自動判定したものであり、保証できる情報ではございません。正確な学校区はお問い合わせ下さい。
※地図上の「対象地」は実際の場所ではない場合がございます。詳しくはお問い合わせください。
