| 価格 | 3,000万円 |
|---|---|
| 種目 | 新築一戸建住宅 |
| 所在地 | 青森市浪館前田4丁目19-29 【価格改定!青森駅車で10分】浪館前田4丁目分譲住宅 |
| 建物面積 | 100.69㎡ |
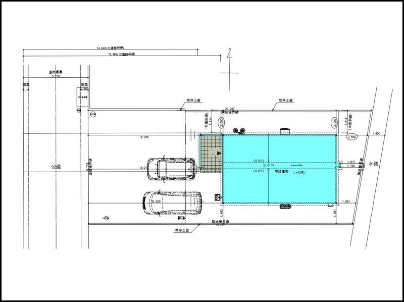
| 土地面積 | 200.55㎡ |
※1/8価格改定!
◆住宅ローン月々返済61400円~
◆青森駅まで車で約10分
◆泉川小学校まで徒歩約10分
◆西中学校まで徒歩約6分
◆お子様の通学も安心の立地
◆駐車2台以上可能
◆LDKは広々18.2帖
◆2階にもトイレがあるので夜間も安心
◆室内干しスペースあり
◆家事ラク設備充実
◆ゆったり入れる一坪タイプの浴室
◆ガス衣類乾燥機「乾太くん」標準設置
この物件の詳細について、お気軽にお問い合わせください
この物件の詳細について、お気軽にお問い合わせください
物件価格3,000万円
月々の支払い73,740円
※上記支払例の借入条件:金利0.85%、借入総額3,000万円、借入期間40年
| 種目 | 新築一戸建住宅 | ||
|---|---|---|---|
| 間取り | 3LDK | 間取り内訳 | 1階(LDK18.2帖、洗面脱衣室、浴室、トイレ)2階(寝室6帖、洋室5帖、洋室4.5帖、トイレ) |
| 土地面積 | 200.55㎡ | 私道面積 | |
| 建物面積 | 100.69㎡ | 建物構造規模 | 木造 2階建 |
| 築年月(竣工月) | 2024年12月 | 駐車場 | |
| 建ぺい率/容積率 | 60%/150% | 都市計画 | 市街化区域 |
| 接道状況 | 西5.2m 公道 接面9.1m | ||
| 地目 | 宅地 | ||
| 土地権利 | 所有権 | 地勢 | |
| 用途地域 | 第一種低層住居専用地域 | ||
| 現況 | 空家 | 取引態様 | 売主 |
| 建築確認番号 | R06確認建セ青青森第0153号 | ||
| 引渡し | 相談 |
|---|
| 設備 | 温水洗浄便座、トイレ2ヶ所、追焚機能、システムキッチン、浄水器、食器洗浄乾燥機、ウォークインクローゼット、洗髪洗面化粧台、電気、プロパンガス、上水道、下水道、複層ガラス、エアコン、モニタ付インターホン、ディンプルキー、駐車場2台分、駐車場3台分 | ||
|---|---|---|---|
| 特徴 | 日当り良好、24時間換気システム、外断熱、制震構造、ハイブリッド電化 | ||
| 諸条件・相談 | |||
| 情報登録日 | 2025年1月9日 | 情報更新予定日 | 2026年1月22日 |
| 物件番号 | 370 | ||
| 所在地 | 青森市浪館前田4丁目19-29 【価格改定!青森駅車で10分】浪館前田4丁目分譲住宅 | ||
|---|---|---|---|
| 最寄駅 | 青い森鉄道 青森駅 | 徒歩分数 | 33分 |
| 最寄バス停 | 西中学校入口 | 徒歩分数 | 3分 |
| 小学校校区 | 泉川小学校 | 中学校校区 |
西中学校
|
※学校区は住所から自動判定したものであり、保証できる情報ではございません。正確な学校区はお問い合わせ下さい。
※地図上の「対象地」は実際の場所ではない場合がございます。詳しくはお問い合わせください。
